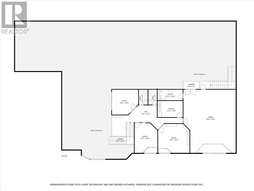
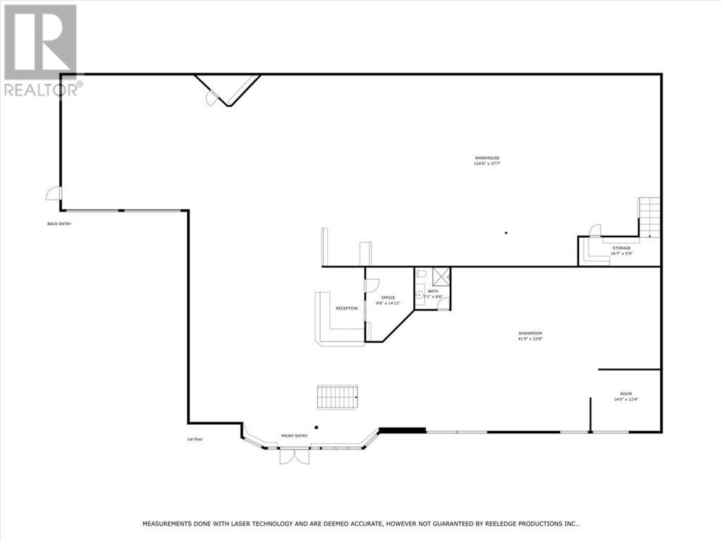
11.040 square feet of premium industrial and commercial space available! Former home of House of Broadloom lends itself to numerous uses. With M1-1 (10) zoning, this property has multiple applications for warehousing, cash and carry or pure retail space. Main floor features 20 foot ceilings for 70% of the main floor with a nicely appointed showroom making up the rest. The upper level mezzanine has several offices, ""over the top"" washroom, lunchroom and large workshop area. Centrally located on Lorne Street, there is easy access to Lorne Street and major traffic routes. Ample parking for 15-20 vehicles. Dock level loading with a 12' overhead door and an 8' overhead door to accommodate drive-in. Lease is on a net-net basis of $12.80 per foot with CAM estimated at $8.00 (2026). With warehouse space at a premium, this is a great opportunity. (id:56069)
| Business Type | Industrial |
| Business Sub Type | General industrial |
| MLS® Number | 2125982 |
| Property Type | Industrial |
| Equipment Type | Unknown |
| Rental Equipment Type | Unknown |
| Road Type | Paved Road |
| Storage Type | Storage |
| Amenities | Air Conditioning, Mezzanine, Storefront |
| Cooling Type | Central Air Conditioning |
| Exterior Finish | Brick, Concrete Block, Rock Imitation |
| Fire Protection | Fire Alarm System, No Sprinkler System, Security System, Smoke Detectors |
| Flooring Type | Concrete, Vinyl |
| Foundation Type | Concrete Slab, Poured Concrete |
| Heating Type | Forced Air |
| Roof Material | Tar & Gravel |
| Roof Style | Unknown |
| Type | Commercial Mix |
| Utility Water | Municipal Water |
| Parking Space(s) | |
| Paved Yard |
| Access Type | Road Access, Year-round Access |
| Acreage | No |
| Fence Type | Not Fenced |
| Sewer | Municipal Sewage System |
| Size Total Text | 1/2 - 1 Acre |
| Zoning Description | M1-1 (10) |
https://www.realtor.ca/real-estate/29214986/68-lorne-street-sudbury
Contact us for more information
Terry Zuk
Broker
(705) 560-5650
(800) 601-8601
(705) 560-9492
www.remaxcrown.ca/